Orangerie in Rifferswil
  • sit oben
  • orangerie innen 1_hell
  • orangerie innen 2
  • 7982 skizze_aussen
  • 7982 skizze_innen
  • 7982 skizze_aussen_2
  • 7982 situation
  • 7982 ansicht_n_neu_1
  • 7982 schnitt_or_ansicht_west
  • 7982 schnitt_anbau_ansicht_west
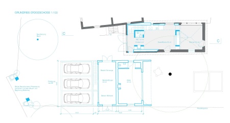
  • 7982 grundriss

Verfahren: Eingeladener Wettbewerb
Aufgabe: Umnutzung Orangerie zu Wohnhaus, Erstellung Neubau Nebengebäude mit Atelier/Werkstatt, Garage
Bauherrschaft: Privat
Jahr: 2021

Orangerie in Rifferswil

Unser Vorschlag basiert auf dem Konzept ‚Erhalt und Weiterbauen‘, wie dies bei historischen Gebäuden in der Vergangenheit traditionell gemacht wurde.

Bei der Umnutzung der Orangerie zu einem Wohngebäude werden Gebäudehülle und Struktur erhalten und saniert. Der Haupteingriff findet im Bereich der Garage statt, daher dort, wo die historische Bausubstanz schon stark verletzt wurde. Im vorderen Bereich schlagen wir einen doppelgeschossigen Wohnraum vor, um die historischen Bogenfester auch im Innenraum erlebbar zu machen. Mit gezielten Öffnungen wird der Bezug von Wohnraum zum südwestlichen Garten hergestellt.

Das neue Nebengebäude übernimmt die Funktion der Orangerie. Wohnen und Arbeiten sind räumlich getrennt, und das Atelier kann neben Arbeiten als Gästetrakt genutzt werden. Mit der Setzung eines Neubauvolumens entsteht eingangsseitig ein Gehöft, welches neue räumliche und funktionelle Bezüge zwischen Keller Doktorhaus, Orangerie und Atelier/Werkstatt schafft. Südlich spannt sich zwischen Atelier und Orangerie ein geschützter Garten mit Sicht auf Park und Felder auf.

Gleichzeitig trennt das Volumen den Garten von der Parkierung, welche unterirdisch direkt an die Werkstatt anschliesst und mit einem minimalen Fussabdruck konzipiert ist. Die Unterflurbühnen mit zwei Parkebenen (z.B. Multibases U20EB von Klaus Multiparking) ermöglichen eine oberirdische Ankunft.